Innowacyjne domy Skórzewo
Co wyróżnia naszą inwestycję?
Rzuty kondygnacji
- Prosimy wybrać wersje
rzutu kondygnacji - Rzuty kondygnacji
(wersja dla rodziny) - Rzuty kondygnacji
(wersja dla dwojga) - Rzuty kondygnacji
(wersja dla seniorów)
Wychodząc na przeciw Państwa oczekiwaniom opracowaliśmy dwa warianty wykonania rzutu kondygnacji.
Zapraszamy do zapoznania się z wersją dla rodziny, wersją dla dwojga, jak również z wersją dla serniorów
PARTER
| 1.1 | Wiatrołap | 4.25 m² |
| 1.2 | Korytarz | 18.79 m² |
| 1.3 | Garderoba | 2.99 m² |
| 1.4 | Schowek | 1.61 m² |
| 1.5 | Aneks kuchenny | 16.54 m² |
| 1.6 | Pokój dzienny z jadalnią | 31,17 m² |
| 1.7 | Pokój | 13.72 m² |
| 1.8 | Pokój | 10.80 m² |
| 1.9 | Pokój | 14.18 m² |
| 1.10 | Łazienka | 7.53 m² |
| 1.11 | Pralnia | 5.76 m² |
| 1.12 | WC | 2.21 m² |
| Razem | 130.04 m² |
| 1.13 | Garaż dwustanowiskowy | 32.72 m² |
| 1.14 | Taras | 48.50 m² |
| Razem | 211.26 m² |
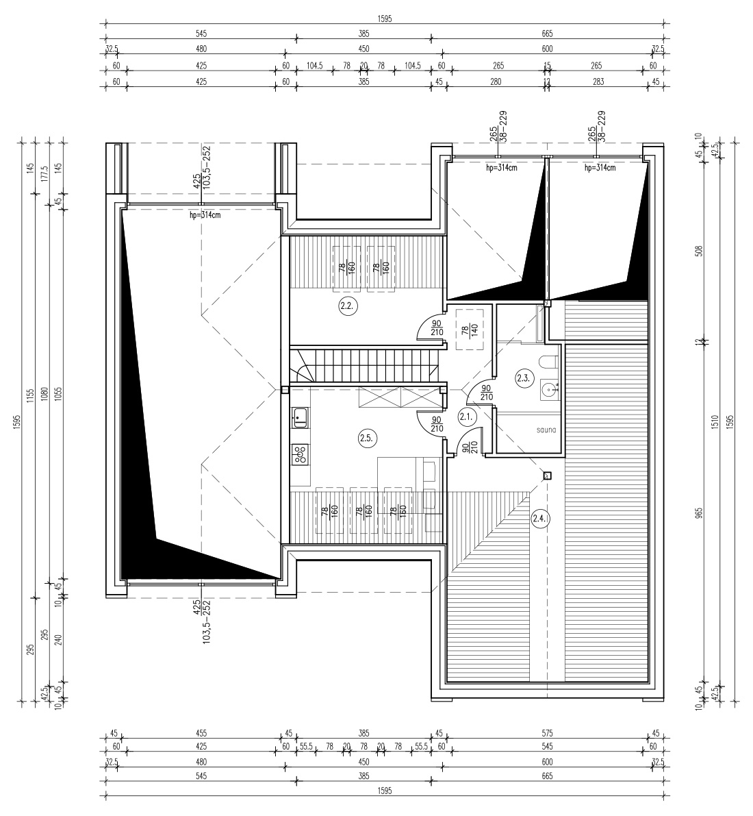
PIĘTRO
| pow. po podłodze | pow. użytkowa | ||
|---|---|---|---|
| 2.1 | Korytarz | 5.29 m² | 5.29 m² |
| 2.2 | Pokój | 13.48 m² | 6.94 m² |
| 2.3 | Łazienka | 7.13 m² | 6.57 m² |
| 2.4 | Pomieszczenie techniczne | 47.16 m² | 8.60 m² |
| 2.5 | Pokój rekreacji | 19.43 m² | 12.93 m² |
| Razem | 92.49 m² | 40.33 m² |
PARTER
| 1.1 | Wiatrołap | 4.25 m² |
| 1.2 | Korytarz | 18.79 m² |
| 1.3 | Garderoba | 2.99 m² |
| 1.4 | Schowek | 1.61 m² |
| 1.5 | Aneks kuchenny | 16.54 m² |
| 1.6 | Pokój dzienny z jadalnią | 31.17 m² |
| 1.7 | Pokój | 13.72 m² |
| 1.8 | Pokój | 25.47 m² |
| 1.9 | Łazienka | 7.53 m² |
| 1.10 | Pralnia | 5.76 m² |
| 1.11 | WC | 2.21 m² |
| Razem | 130.04 m² |
| 1.12 | Garaż dwustanowiskowy | 32.72 m² |
| 1.13 | Taras | 48.50 m² |
| Razem | 211.26 m² |
PIĘTRO
| pow. po podłodze | pow. użytkowa | ||
|---|---|---|---|
| 2.1 | Korytarz | 5.29 m² | 5.29 m² |
| 2.2 | Pokój | 13.48 m² | 6.94 m² |
| 2.3 | Łazienka | 7.13 m² | 6.57 m² |
| 2.4 | Pomieszczenie techniczne | 47.16 m² | 8.60 m² |
| 2.5 | Pokój rekreacji | 19.43 m² | 12.93 m² |
| Razem | 92.49 m² | 40.33 m² |
PARTER
| 1.1 | Wiatrołap | 4.25 m² |
| 1.2 | Korytarz | 18.79 m² |
| 1.3 | Garderoba | 2.99 m² |
| 1.4 | Schowek | 1.61 m² |
| 1.5 | Aneks kuchenny | 16.54 m² |
| 1.6 | Pokój dzienny z jadalnią | 31.17 m² |
| 1.7 | Pokój | 13.72 m² |
| 1.8 | Pokój | 25.47 m² |
| 1.9 | Łazienka | 7.53 m² |
| 1.10 | Pralnia | 5.76 m² |
| 1.11 | WC | 2.21 m² |
| Razem | 130.04 m² |
| 1.12 | Garaż dwustanowiskowy | 32.72 m² |
| 1.13 | Taras | 48.50 m² |
| Razem | 211.26 m² |
PIĘTRO
| pow. po podłodze | pow. użytkowa | ||
|---|---|---|---|
| 2.1 | Korytarz | 5.29 m² | 5.29 m² |
| 2.2 | Pokój | 13.48 m² | 6.94 m² |
| 2.3 | Łazienka | 7.13 m² | 6.57 m² |
| 2.4 | Pomieszczenie techniczne | 47.16 m² | 8.60 m² |
| 2.5 | Pokój rekreacji | 19.43 m² | 12.93 m² |
| Razem | 92.49 m² | 40.33 m² |
Dane techniczne
Technologia budowy domu
- Płyta fundamentowa IZOSlab o grubości izolacji 15 cm + dodatkowa izolacja styropianem pod jastrychem
- Ściany zewnętrzne wykonane w technologii szalunku traconego (IZODOM Passive) o grubości 45 cm
- Ściany działowe z betonu komórkowego
- Strop S-PANEL 60
- Schody żelbetowe – zabiegowe
- Dach wielospadowy konstrukcji drewnianej, kryty dachówką ceramiczną i ocieplony płytą dachową IZORoof
Elewacja
- Stolarka okienna aluminiowa – 3 szybowa w systemie HST ,PSK oraz FIX o podwyższonych parametrach termicznych
- Elektrycznie sterowane żaluzje fasadowe
- Drzwi wejściowe aluminiowe
- Lamele elewacyjne
- Tynk silikonowy
- Oświetlenie elewacyjne
- Brama garażowa Wiśniowski 60 mm UniTherm
Instalacje w budynku
- Ogrzewanie podłogowe w całym budynku z możliwością sterowania temperaturą w zdefiniowanych strefach
- Ekonomiczne ogrzewanie pompą ciepła klasy premium szwedzkiej firmy NIBE
- Wentylacja mechaniczna z odzyskiem ciepła REVERSUS 450E z wymiennikiem entalpicznym oraz panelem WIFI (rekuperacja)
- Instalacja fotowoltaiczna o mocy 8,36 kWp
- Przydomowa biologiczna oczyszczalnia ścieków z odzyskiem wody
- Odkurzacz centralny z automatycznym wciąganiem węża pod podłogę
Instalacje smarthome
- System alarmowy SATEL
- 7 kamer monitoringu zewnętrznego z nagrywarką
- System inteligentnego domu SATEL BeWave do sterowania alarmem, oświetleniem, żaluzjami, ogrzewaniem i automatyką – z możliwością rozbudowy
Otoczenie domu
- Podjazd i taras z płyt betonowych
- Brama wjazdowa łamana i automatyczna
- Ogrodzenie panelowe – teren zamknięty
- Zbiornik podziemny na odzyskaną wodę przeznaczoną do podlewania w ogrodzie
- Multimedialny słupek pocztowy ze skrytką na paczki kurierskie i wideodomofonem
Wysokości i powierzchnie
- Powierzchnia użytkowa parteru – 128,18 m2
- Powierzchnia dwustanowiskowego garażu – 36,2 m2
- Powierzchnia użytkowa piętra – 33,24 m2
- Powierzchnia użytkowa poddasza (strych) – 8,75 m2
- Powierzchnia podłogi całego piętra – 92,79 m2
- Część dzienna (kuchnia, salon) oraz 2 pokoje na parterze – pełna wysokość bez stropu











